페이지 정보

본문

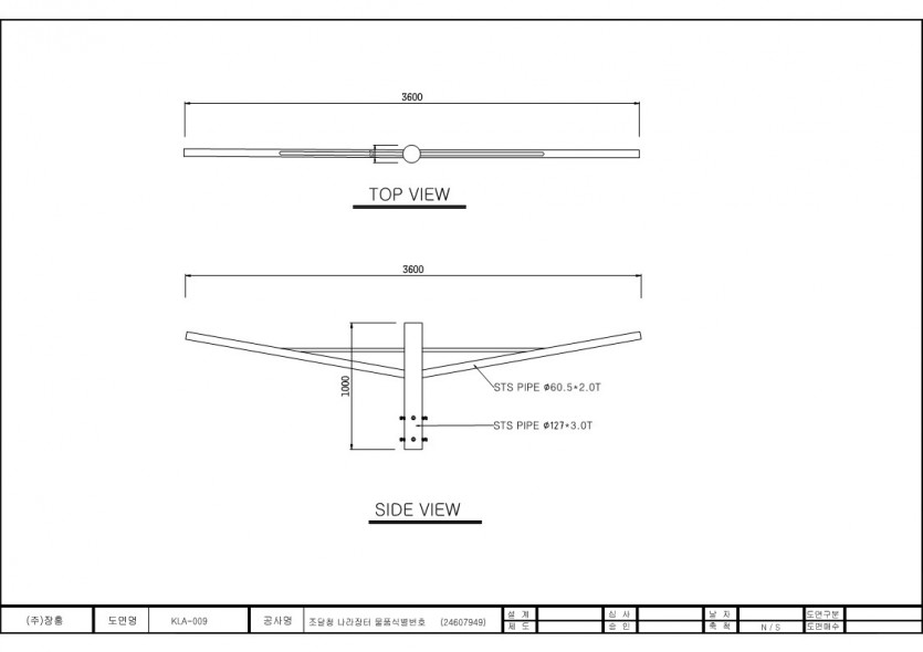
KLA-009, 암대
물품식별번호 24607949
제품사양
크기(높이)
1000mm
크기(길이)
3600mm
재질
스테인리스강
종류
암대
부착등수
2
단수
1
암의단면모양
원형
표면처리방식
광택
외형도

.